Perante o actual cenário de crise da habitação qual é o contributo da disciplina da arquitectura?
A solução para o problema da habitação não está na perpetuação de métodos construtivos obsoletos e na repetição de uma matriz tipológica orientada para uma ideia de família que já não corresponde à estrutura da sociedade contemporânea.
“Sistemas de Habitação” é uma investigação sobre a habitação de hoje e de amanhã.
Propomos sistemas de construção de habitação colectiva que conjugam avanços sociais e avanços tecnológicos, em ruptura com o conceito de tipologia prevalecente.
Propomos uma habitação definida, não como uma estrutura física limitada, mas como um dispositivo com múltiplas possibilidades de alteração ao longo do tempo, adaptando-se constantemente às necessidades do agregado familiar.
O estudo “Procura e Oferta de Habitação em Lisboa” realizado em 2019 e que informou a Estratégia Local de Habitação para 2019-2024, concluiu que a maioria dos agregados familiares que se candidatam aos programas de apoio à habitação são constituídos por 3 membros ou menos: agregados unipessoais, famílias monoparentais, casais sem filhos, casais com 1 filho.

©AboutSpaces
Que serve todos os agregados familiares descritos anteriormente. Uma tipologia capaz de se adaptar no dia-a-dia às necessidades dos seus habitantes, e ao longo dos anos à evolução orgânica do agregado familiar - permitindo o enraizamento das famílias e a criação de um tecido social coeso: uma resposta simultânea ao direito à habitação e ao direito ao lugar.
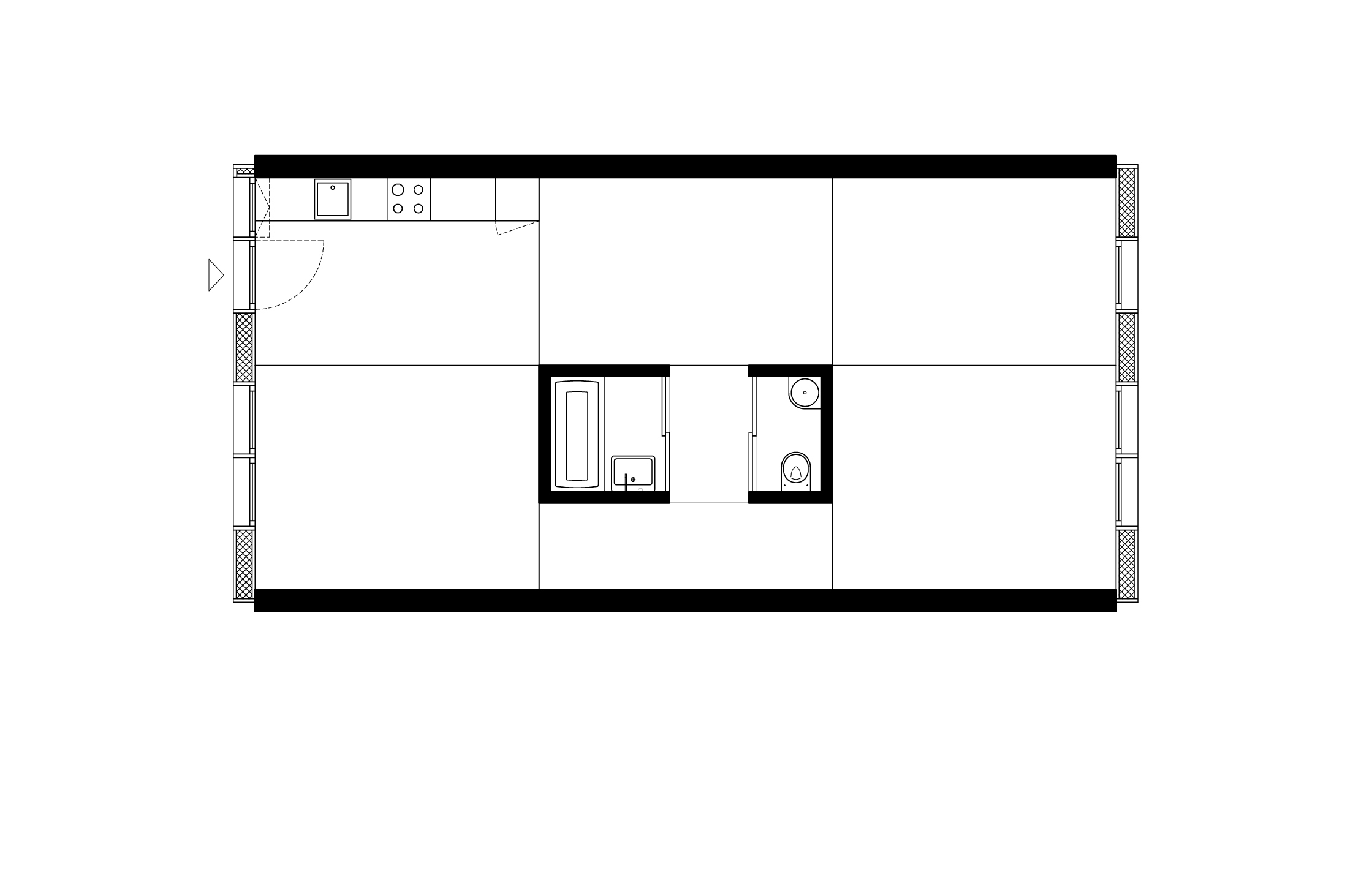
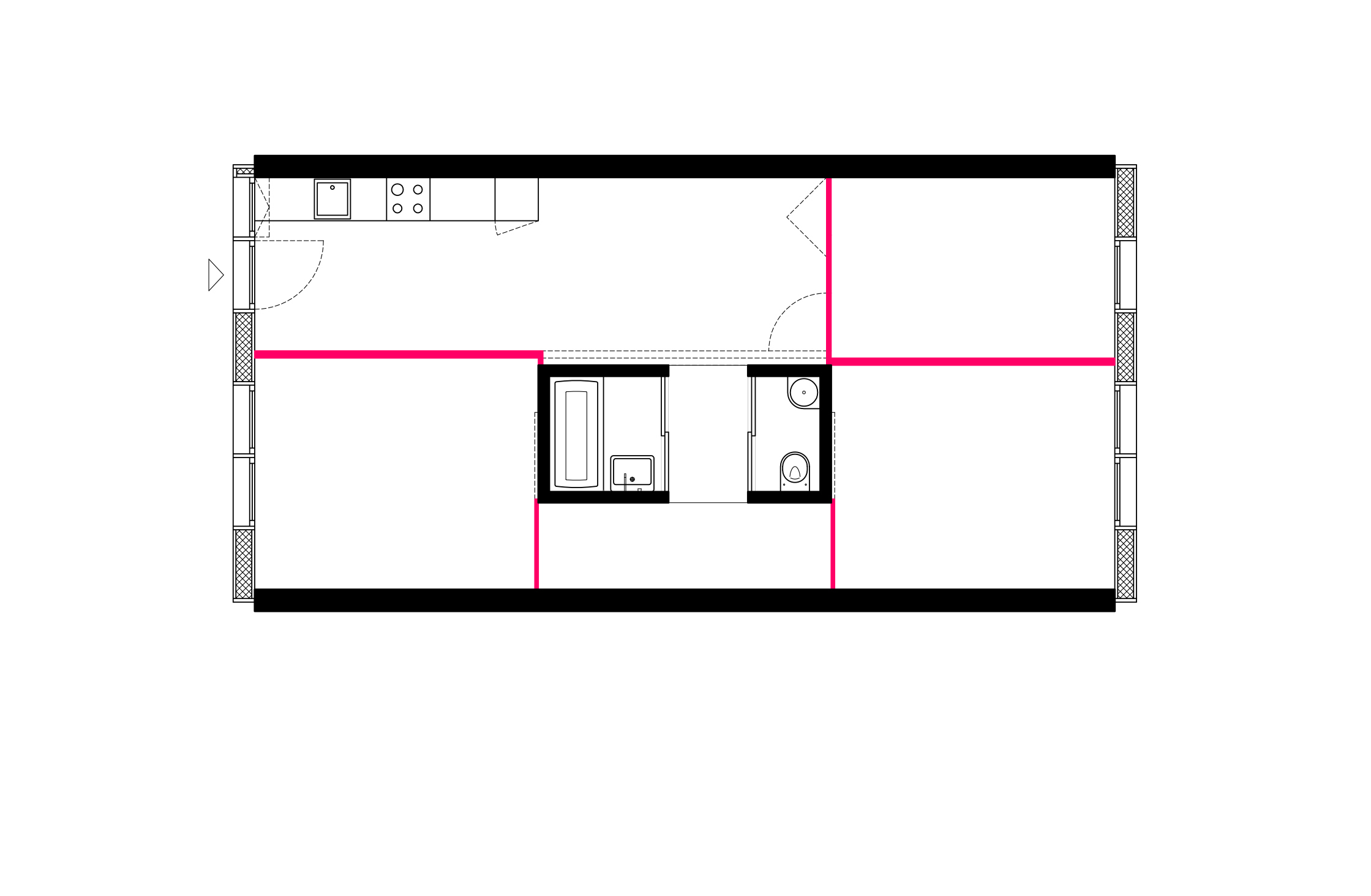
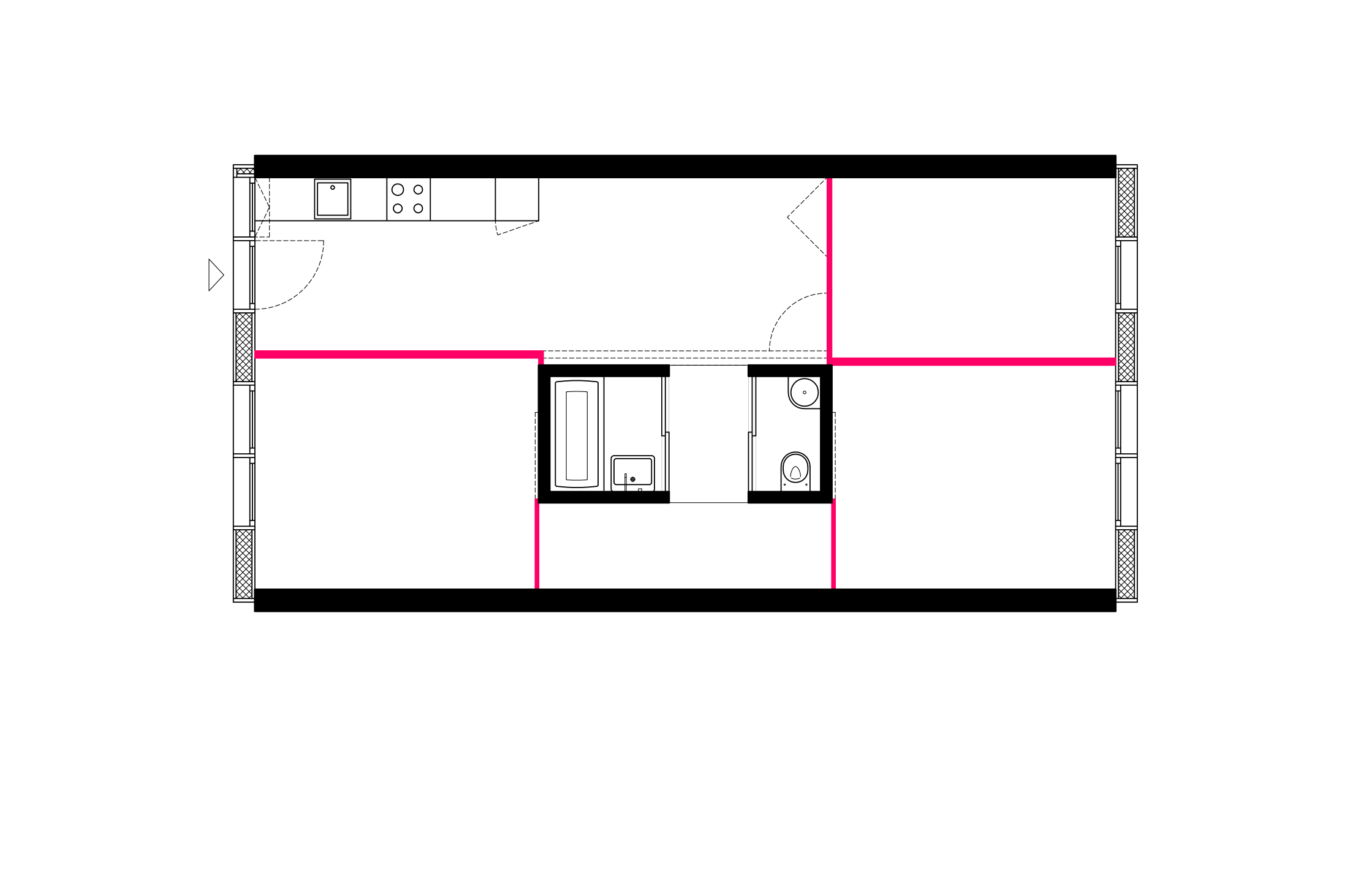
A tipologia definida parte de uma base geométrica simples. Para além dos elementos estruturais - lajes e paredes - as tipologias são constituídas por dois elementos necessariamente fixos - a cozinha e a instalação sanitária - e um conjunto de elementos móveis - portas de correr ou em harmónio, e duas grandes paredes deslizantes que atravessam o apartamento - que de acordo com a sua posição no espaço originam múltiplas configurações habitacionais. A dinâmica entre os elementos fixos e móveis que constituem a tipologia habitacional possibilita uma variedade quase infinita de modos de vida em conjunto.















A repetição da mesma tipologia permite uma modularização quase total dos elementos construtivos utilizados. O sistema estrutural em madeira CLT permite a preparação digital dos seus elementos para fabricação “off site” e posterior transporte para o local de construção, reduzindo a produção de resíduos da construção, o tempo de obra e o consumo de água, com óbvias mais valias económicas e ambientais.
1. Módulos de Fachada
2. Módulo de Cozinha
3. Porta em Harmónio
4. Módulo de Instalação Sanitária
5. Paredes Deslizantes
6. Portas de Correr


©AboutSpaces

@AboutSpaces
O mercado imobiliário conseguiu impor à sociedade a noção de habitação como ativo financeiro calculado através da fórmula €/m². Quanto mais metros quadrados, maior é o valor económico da habitação. Pode a arquitectura contribuir para quebrar este dogma?
E se só existisse uma tipologia habitacional?

©LAMB
O que significa, hoje, viver em comunidade?
Propomos um sistema de construção de habitação colectiva aberto à participação dos seus futuros habitantes e passível de ser concretizado através de sistemas de construção modular.

©AboutSpaces
O projecto do edifício é entendido como a definição de uma matriz aberta e intencionalmente inacabada que será depois consolidada através da participação dos habitantes.
As tipologias habitacionais são definidas por um conjunto de módulos espaciais e construtivos com 2,80m x 4,35m e 12m² de área útil. Uma área que cumpre com os requisitos de áreas mínimas e acessibilidades definidos na legislação aplicável.
Estes módulos são de três tipos: cozinha (C), instalação sanitária (IS) e espaço livre (E). As tipologias podem variar entre o tamanho XS (T0) até ao tamanho XL (T4) de acordo com o número de módulos que as constituem.
O edifício apresenta uma grelha estrutural / modular de 3m x 4,60m. O número de módulos que constituem o edifício e a sua combinação será definido pelas necessidades dos habitantes e pelas condicionantes à implantação.









As habitações são constituídas por espaços com características dimensionais e espaciais equivalentes sem uma função pré-determinada, à excepção da cozinha e instalação sanitária pela necessidade de infraestruturação. Os restantes espaços, equivalentes em metros quadrados, luz e ventilação, podem ser utilizados para estar, comer, dormir, trabalhar, etc.
Os compartimentos são dispostos sequencialmente sem espaços de circulação entre eles. Tudo é espaço habitável e tudo é circulação, o que permite uma grande otimização na ocupação do espaço total da casa.

Anarquia?
O edifício é um conjunto não hierarquizado de espaços que funciona como um sistema aberto, capaz de se adaptar, não só às necessidades iniciais de cada agregado familiar, como também à evolução orgânica do grupo de habitantes e a formas de convivência futuras ainda inimagináveis.

©AboutSpaces
escritorio@for-a.eu